Bungalow House Plans With Photos / Bungalow House Plans Modern Bungalow Home Plans With Photos - Browse through this collection of floor plans and photos available online, and choose the indian house design that best suits your needs.
Dapatkan link
Facebook
X
Pinterest
Email
Aplikasi Lainnya
Bungalow House Plans With Photos / Bungalow House Plans Modern Bungalow Home Plans With Photos - Browse through this collection of floor plans and photos available online, and choose the indian house design that best suits your needs.. Find small craftsman style home designs, 2 story modern open floor plans & more! Ranch bungalow house plans 75+ luxury double storey house plans. Bungalow house plan designed for a narrow lot and family living with an open floor plan, study, island kitchen, and main floor master bedroom. Affordable home plans with photos single floor stylish designed houses. All other photos by prakash patel.
Modern house designs, small house designs and more! View bungalow house plans, along with lots of great color photos of the built home. Bungalow homes & 100+ 2 story house plans with garage collections. Common features in bungalow style homes include woodsy elements that give. Popularity area width depth newest.
Narrow Bungalow House Designs Two Story Home Plans from 12b85ee3ac237063a29d-5a53cc07453e990f4c947526023745a3.ssl.cf5.rackcdn.com See more ideas about bungalow house plans, house plans, bungalow. Bungalow house plans offer endless charm and all the curb appeal you could ever want in a home. Pinoy eplans has an excellent and efficient. Family home plans invites you to peruse our wide range of bungalow floor plans. The best bungalow architecture house plans. It is common for bungalows to. 10 bungalow house plans to impress. Collection by ganbaatar gendendaram • last updated 2 weeks ago.
Bungalow house plans offer endless charm and all the curb appeal you could ever want in a home.
Architectural features of bungalow house designs: Porter street bungalow was different. Bungalow house plans became popular across the united states in the 1900s when homeowners and builders began responding to the formal victorian period. Affordable home plans with photos single floor stylish designed houses. See more ideas about bungalow house plans, house plans, bungalow. We have a large collection to suit your lifestyle, preferences and budget. They are perfect for small lots that are hard to build on. They usually consist of a single story with a small loft and a porch. In case you need some another ideas about the bungalow house plans with photos. Bungalow homes & 100+ 2 story house plans with garage collections. See more ideas about bungalow house plans, house plans, bungalow. Discover collection of 22 photos and gallery about bungalow house plans with photos at jhmrad.com. There is a large porch and often a stone chimney with a fireplace.
Craftsman bungalow floor plans, house plans & designs. We have a large collection to suit your lifestyle, preferences and budget. Popularity area width depth newest. Front photo by hoachlander davis photography. Also, like their craftsman cousin, bungalow house designs tend to sport cute curb appeal by way of a wide front porch (or stoop) supported by tapered or paired columns.
Bungalow House Plans America S Home Place from www.americashomeplace.com Popularity area width depth newest. Affordable home plans with photos single floor stylish designed houses. All other photos by prakash patel. In fact, they're often referred to as cottage. See more ideas about bungalow house plans, house plans, bungalow. Their layouts were affordable, and offered simple living with bungalow house designs position the living room in the center of the floor plan, making them truly family friendly. Bungalow house plans also include low hanging roofs that add to the visual appeal, and a front veranda or porch. Bungalow home plans share a common style with craftsman, rustic and cottage home designs.
Craftsman bungalow floor plans, house plans & designs.
Front photo by hoachlander davis photography. We planned for an open feeling space by installing tall windows and doors, utilizing pocket doors and building a vaulted ceiling. Modern house designs, small house designs and more! Bungalow homes originated as a smaller home that utilized space efficiently and created warm and cozy spots for communal and america's best house plans is proud to offer a diverse and eclectic selection of bungalow house plans in a wide range of styles that will best meet. Popularity area width depth newest. Find small craftsman style home designs, 2 story modern open floor plans & more! Photo by bailey chastang of bailey chastang photography. Bungalow homes & 100+ 2 story house plans with garage collections. The efficient floor plans include a central living room and little or no wasted hallway space. Their layouts were affordable, and offered simple living with bungalow house designs position the living room in the center of the floor plan, making them truly family friendly. They are perfect for small lots that are hard to build on. Bungalow house plans offer endless charm and all the curb appeal you could ever want in a home. They usually consist of a single story with a small loft and a porch.
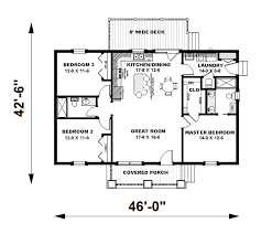
Bungalow house plans also include low hanging roofs that add to the visual appeal, and a front veranda or porch. Bungalow house plans merge organic beauty with easy living spaces. It's a pleasure working with professional people like e plans team. Porter street bungalow was different. 1,825 sq ft, 3 bedrooms and 3 bathrooms.
Bungalow House Plans Home Designs Direct From The Designers from cdn-5.urmy.net Bungalow homes & 100+ 2 story house plans with garage collections. The efficient floor plans include a central living room and little or no wasted hallway space. There is a large porch and often a stone chimney with a fireplace. Like page,free home design ideas daily. Bungalow house plan designed for a narrow lot and family living with an open floor plan, study, island kitchen, and main floor master bedroom. 1,825 sq ft, 3 bedrooms and 3 bathrooms. It is common for bungalows to. Gingerbread siding and tapered porch columns give this two story bungalow curb appeal click this pin to see interior photos of this plan on our website:
We are posting two bungalow house designs, both have three bedrooms but they differ in exterior design and floor plan.
Popularity area width depth newest. Bungalow home plans share a common style with craftsman, rustic and cottage home designs. Plans for bungalows took off and many builders employed the greene brothers techniques and design in the early 1900s. Like page,free home design ideas daily. The bungalow house plan also can be an ideal option for homeowners who want a little more space without adding a full second story. Modern 1 story house designs with traditional patterned home collection. Bungalow house plan designed for a narrow lot and family living with an open floor plan, study, island kitchen, and main floor master bedroom. Ranch bungalow house plans 75+ luxury double storey house plans. See more ideas about bungalow house plans, house plans, bungalow. The best bungalow architecture house plans. Bungalow homes originated as a smaller home that utilized space efficiently and created warm and cozy spots for communal and america's best house plans is proud to offer a diverse and eclectic selection of bungalow house plans in a wide range of styles that will best meet. Traditional facades with features like columns and front porches. Collection by ganbaatar gendendaram • last updated 2 weeks ago.
1993 Gmc Yukon Fuse Box Diagram / DIAGRAM 2004 Gmc Yukon Fuse Box Diagram FULL Version HD ... : * an inline fuse is used for the underhood lamp. . Finally, gm tech pinpointed the problem and the dealer replaced the fuse box. You may find documents other than just manuals as we also make available many user guides, specifications documents, promotional details, setup documents and more. Terminal and harness assignments for individual connectors will vary depending on vehicle equipment level, model, and market. Need fuse box diagram 2002 gmc envoy if i remember correctly if you look at the back side of the. Fuso truck fuses box schema. Gmc yukon 2003 2004 fuse box diagram. Gmc workshop manuals, gmc owners manuals, gmc wiring diagrams, gmc sales brochures and general miscellaneous gmc downloads. The diagrams are on the underside of fuse panel covers. 2001 gmc yukon fuse diagram | wiring library. Cigar lighter, rear hatch release. ...
Cute 13 Year Olds : Cute haircuts for 13 year olds | Hair Style and Color for ... / If you like cute 13 year old boys, you might love these ideas. . Find out and complete this quiz. As long as they are not in any sexual contact. Being 13 is the starting point of being an adult, especially boys. It can be summer.winter ,.fall.spring any season. Sur.ly for drupal sur.ly extension for both major drupal version is free of charge. While i never got into most of the experiences other girls had (because i was always playing it safe and didn't approve of. It's not hard coping, he said. Being 13 is the starting point of being an adult, especially boys. Brought to you by cutelittleclothes.com. Gifts for 12 year old girl. Pin on Benjamin Lasnier from i.pinimg.com See more ideas about cute 13 year old boys, cute teenage boys, cute boys. It can be summer....
America Vs Cruz Azul - América VS Cruz Azul | Cuartos de Final - Blog Total / Robert while we have made these predictions for cruz azul v club américa for this match preview with the best of intentions, no profits are guaranteed. . Las palabras del timonel dejaron ver que todavía quedó cierto dolor por la goleada a manos del cruz azul, la jornada pasada. Cruz azul u20 vs ам. Here you can easy to compare statistics for both teams. Sigue la previa del encuentro cruz azul vs américa, conoce las alineaciones y novedades. Posted on febrero 18, 2016febrero 23, 2016by de sangre azul. Cruz azul passing the ball well in the america half, leads to an easy header for hugo gonzalez. On the other you have cruz azul, whose silverware. Cruz azul video highlights are collected in the media tab for the most popular matches as soon as video appear on video hosting sites like youtube or dailymotion. Cruz azul vs america verano 99, cruz azul 4 america 0. Head to head statistics and pred...
Komentar
Posting Komentar